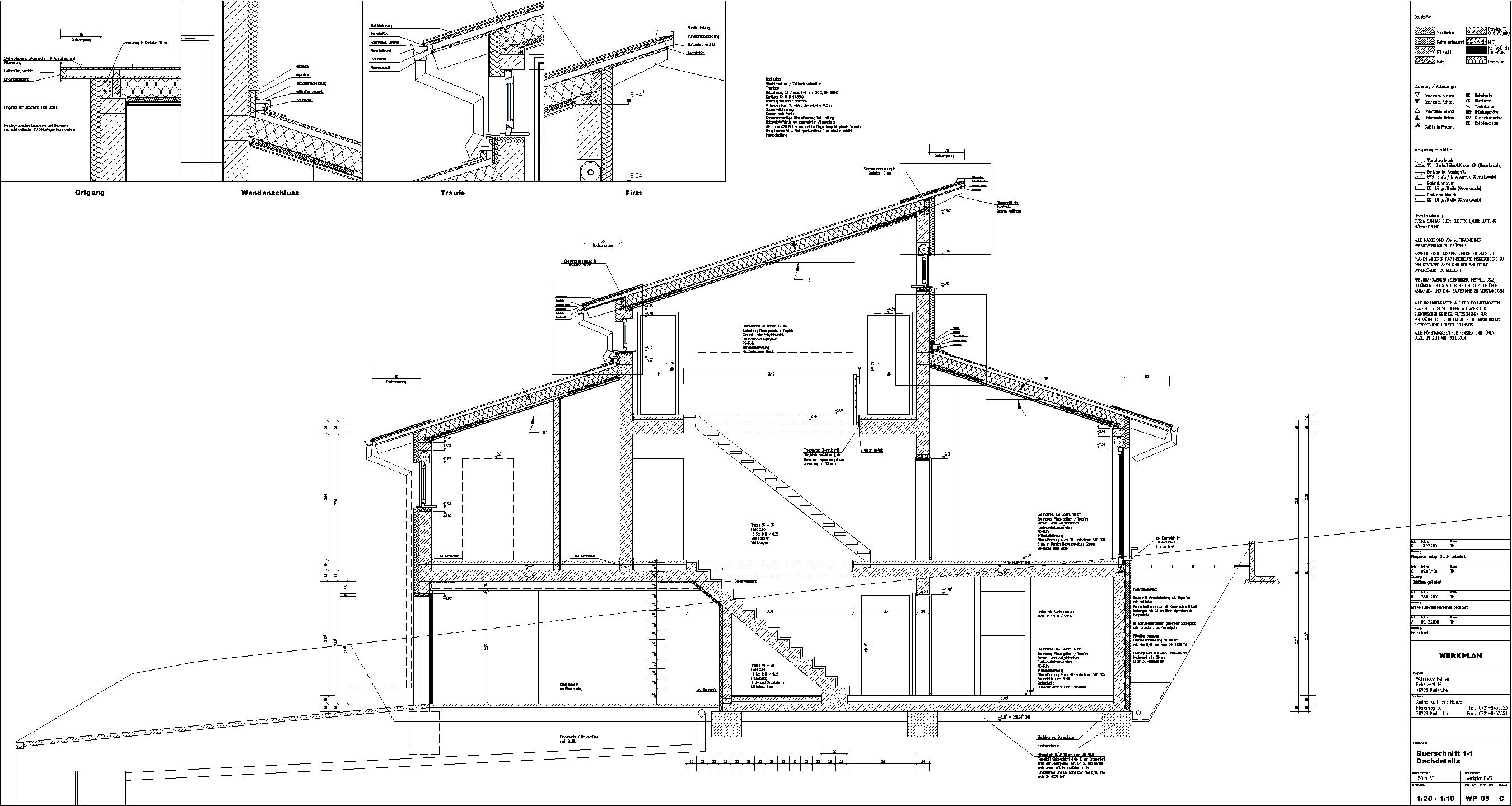
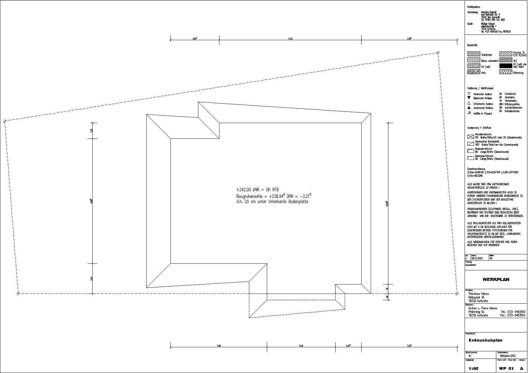
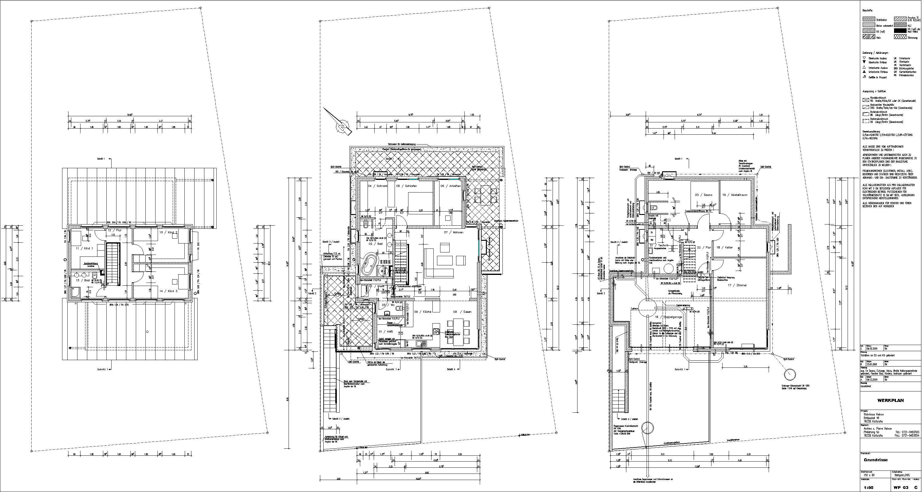
Allgemeines
Bezeichnung Neubau Einfamilienwohnhaus in KA-Hohenwettersbach
Bearbeitet / Baujahr 2001
Bauherr A. + P. Heinze
Bausumme ca. 0.35 Millionen Euro
ausgeführte Leistungsphasen LP 5